減速機廠家認準淄博匯益減速機械,型號全
山東減速機專業廠家,供貨充足,品質放心


手機瀏覽
更方便
減速機原理指通過齒輪傳動裝置在原動機與工作機之間實現轉速匹配和扭矩傳遞的技術。其核心功能為降低轉速并增加輸出扭矩,主要結構包括輸入軸、主動齒輪與輸出軸從動齒輪,通過齒數差實現減速,多級嚙合可增大減速比。
減速機高速軸轉速n1,≤1 500r/min。
工作環境溫度為-40~45℃。低于0℃時,啟動前潤滑油應預熱。
減速機主要工作特點
(1)齒輪采用高強度低碳合金鋼經滲碳淬火而成,齒面硬度達P{RC54~62:
(2)齒輪采用磨齒工藝,精度高,接觸好:
(3)承載能力高,比軟舊齒面減速器承載能力提高七倍:
(4)傳動效率高,單級可達98%,兩級可達96%,三級可達94%:
(5)壽命長。
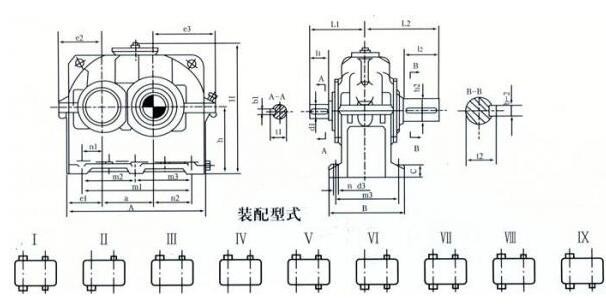
規格及基本參數